みちくさテラス 行橋の賃貸テナント!|有限会社行橋豊栄不動産

0930-23-1079
  • 営業日:

    平日 9:00〜17:00
    土曜 9:00〜12:00
  • 休業日:

    日曜・祝日
メールでお問い合わせはこちら
みちくさテラス 行橋の賃貸テナント!

みちくさテラス A 行橋の賃貸テナント 

賃料(坪単価) 14.5万円(18,495円) 管理費(坪単価) -()
敷金 / 礼金 - / 2ヶ月 保証金 / 償却 - / -
所在階 / 階数 1階 / 2階 構造 RC造(鉄筋コンクリート造)
用途 / 面積 テナント / 25.92m2 築年月 新築
交通
JR日豊本線 「行橋駅」 徒歩6分
所在地 福岡県行橋市中央2丁目5-23   周辺MAP
※事業用物件は 賃料・共益費・管理費等が税別表記です
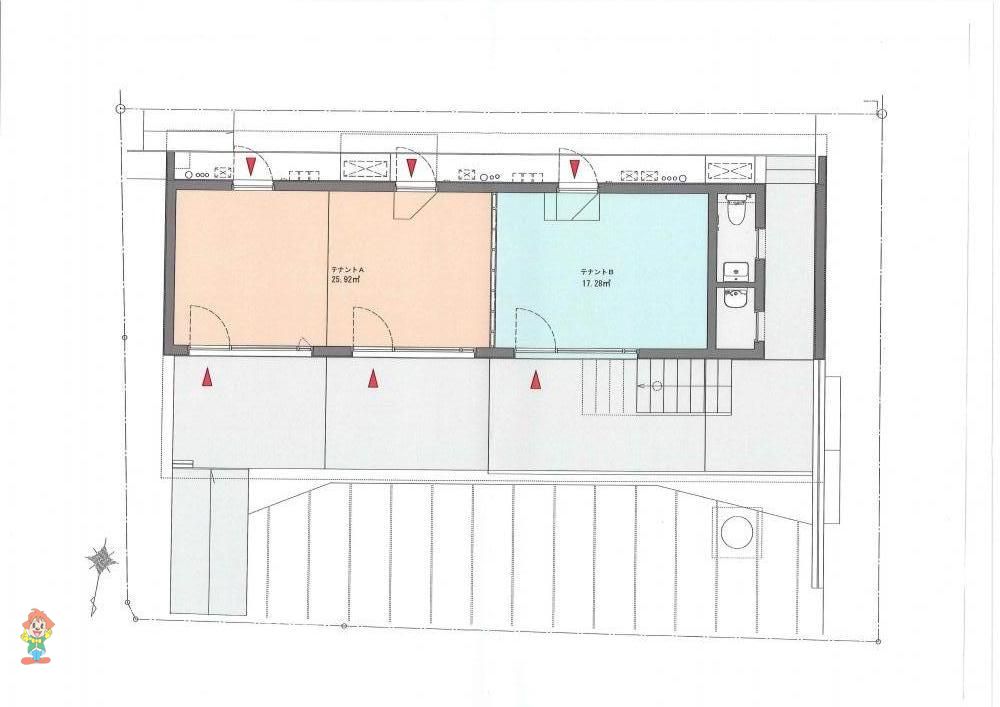
【建物外観】 完成イメージ 【間取】  【その他】 完成イメージ 【その他】 完成イメージ 【その他】 完成イメージ 【間取】 共同トイレ
【建物外観】 完成イメージ
【間取】 
【その他】 完成イメージ
【その他】 完成イメージ
【その他】 完成イメージ
【間取】 共同トイレ
  • 【建物外観】 完成イメージ
  • 【間取】 
  • 【その他】 完成イメージ
  • 【その他】 完成イメージ
  • 【その他】 完成イメージ
  • 【間取】 共同トイレ

【スタッフからのイチオシポイント!】みちくさテラス

行橋駅前新築テナント!カフェ・ブティック・雑貨屋・サロンにおすすめ
福岡県行橋市中央2丁目5-23【JR日豊本線 行橋駅徒歩6分】にある賃貸テナントです。
新築築の2階建てのテナントで、物件は2階建ての1階部分です。物件の広さは25.92m2です。
※物件のもっと詳しい内容や入居時期、諸条件のご相談など、ホームページには掲載が間に合わず載せきれていない情報もございます。
気になることが御座いましたらお気軽にメールにてお問い合わせください。
0930-23-1079
有限会社行橋豊栄不動産
お問い合わせNO:RHS-Am25030401

物件詳細情報

現況 未完成 入居可能日 2026年8月1日
取引態様 専任 契約態様 -
他初期費用
  • 保証会社 初回 月額賃料等総額100% 年更新10%
    共用トイレの掃除や、ゴミ処理の費用も込みで安心です。

設備詳細情報

用途 造作
天井高 エレベーター
業種
設備
  • 駅まで平坦
  • 礼金2ヶ月
条件・その他 ガス:プロパン / 水道:公営 / 排水:下水
備 考 -
※各種情報と差異がある場合は現況優先となります

近隣スポット情報

こちらの物件の空室状況

部屋番号 賃料 共益費 / 管理費 間取り 専有面積 敷金 礼金 お気に入り 物件詳細
A 14.5万円 - / - ワンルーム 25.92m2 - 2ヶ月 お気に入り 物件詳細
B 9.9万円 - / - ワンルーム 17.28m2 - 2ヶ月 お気に入り 物件詳細
C 7.9万円 - / - ワンルーム 12.96m2 - 2ヶ月 お気に入り 物件詳細
D 15.8万円 - / - ワンルーム 12.96m2 - 2ヶ月 お気に入り 物件詳細
0930-23-1079
有限会社行橋豊栄不動産
お問い合わせNO:RHS-Am25030401

この物件に似た物件をチェック!


閲覧した物件の履歴

閲覧した物件の一覧を見る

最近検索した条件一覧



気になったら今すぐ!カンタンお問合せ



お問合せ内容必須
【備考欄】
希望条件・来店希望日・その他質問がございましたらご記入ください。
お客様情報
お名前必須
連絡先必須 メールアドレス
電話番号



※ご入力いただいたお客さまの個人情報は、「個人情報の取扱いについて」に基づき適正に取り扱います。
必ずお読みになり、同意の上お問い合わせください。




※ご記入いただいたメールアドレス宛てに、お問合せ内容の確認メールをお送りいたします。
※Yahoo!メールなどのフリーメールをご利用の場合、迷惑メールフォルダに入る場合があります。
 迷惑メールのフォルダ・設定等をご確認下さい。
 


▲ページのTOPへ戻る


お問合せはこちら

有限会社行橋豊栄不動産 0930-23-1079

ページトップへ
メールでお問い合わせはこちら
0930-23-1079
  • 営業日:

    平日 9:00〜17:00
    土曜 9:00〜12:00
  • 休業日:

    日曜・祝日